Xuquer-Arqing

DISEÑO DE INSTALACIONES DE SANEAMIENTO

DISEÑO DE INSTALACIONES DE SANEAMIENTO

En XÚQUER-ARQING disponemos del Equipo Técnico y los programas informáticos adecuados para el cálculo y diseño de Instalaciones de Saneamiento.

Todos los diseños de Instalaciones de Saneamiento de nuestros Proyectos o Direcciones Facultativas de Edificación u Obra Civil se han desarrollado por nuestro Departamento de Instalaciones, no recurriendo a empresas externas, lo cual nos ha permitido controlar los costes, plazos y calidad.

También realizamos este tipo de diseños para otras empresas.

A continuación presentamos algunos de nuestros trabajos.

Efectos al pasar el cursor sobre la imagen

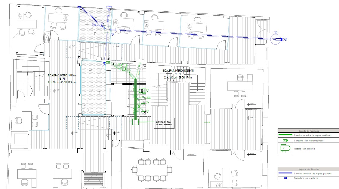
REHABILITACIÓN EDIFICIO USOS MÚLTIPLES - LA ALGABA (SEVILLA)

Efectos al pasar el cursor sobre la imagen

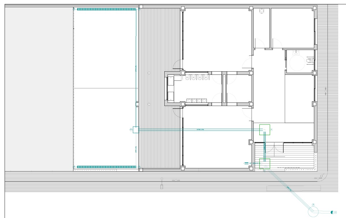
AMPL Y REHAB AYUNTAMIENTO - ALBALAT DE LA RIBERA (VALENCIA)

Efectos al pasar el cursor sobre la imagen

NUEVA ESCUELA INFANTIL INFANTIL - ALFARB (VALENCIA)

Efectos al pasar el cursor sobre la imagen

CENTRO DE DÍA - JEREZ DE LOS CABALLEROS (BADAJOZ)

Efectos al pasar el cursor sobre la imagen

REFORMA EDIFICIO LOCAL - GELDO (CASTELLÓN)

Efectos al pasar el cursor sobre la imagen

BAR ZONA PAS BLAU - LA POBLA DE CLARAMUNT (BARCELONA)